五、CCB型餐厨垃圾浆液处理泵性能参数表
| 流量 | 扬程 H | 转速 n | 轴功率 Pa | 配带电动机 | 效率 η | 必需 汽蚀 余量 | 整机 重 | |
功率 | 型号 | ||||||||
m3/h | m | r/min | kw | kw | % | m | kg | ||
50CCB8-20 | 6.4 8 9.6 | 21 20 19 | 2950 | 0.81 0.91 0.92 | 4 | Y112M-2 | 45 48 54 | 3.0 3.0 3.5 | 200 |
65CCB8-50 | 6.4 8 9.6 | 53 50 48 | 2950 | 2.0 2.2 2.3 | 5.5 | Y132M-2 | 47 50 55 | 3.0 3.0 3.5 | 250 |
65CCB10-20 | 8 10 12 | 21 20 19 | 1480 | 0.96 1.1 1.2 | 5.5 | Y132S-4 | 48 51 55 | 3.0 3.0 3.5 | 240 |
100CCB30-25 | 24 30 36 | 26 25 24 | 1480 | 2.6 3.0 3.4 | 7.5 | Y132M-4 | 65 68 70 | 3.0 3.0 3.0 | 350 |
125CCB150-25 | 90 150 180 | 30 25 20.6 | 2950 | 12.9 15.3 16.0 | 22 | Y180-2 | 57 67 63 | 4.7 5.2 5.7 | 570 |
125CCB135-32 | 80 135 160 | 36 32 28 | 2950 | 13.3 18.1 19.7 | 30 | Y200L1-2 | 59 65 62 | 4.7 5.2 5.7 | 630 |
150CCB180-25 | 108 180 216 | 27.2 25 23.2 | 1480 | 13.6 18.3 21.0 | 30 | Y200L-4 | 59 67 65 | 3.5 4.0 4.5 | 920 |
150CCB200-32 | 120 200 240 | 34 32 29 | 1480 | 18.5 25.6 28.7 | 37 | Y225S-4 | 60 68 66 | 3.5 4.0 4.5 | 970 |
200CCB300-25 | 180 300 360 | 28 25 22 | 1480 | 21.8 28.8 31.3 | 37 | Y225S-4 | 63 71 69 | 3.8 4.3 4.8 | 1150 |
200CCB270-32 | 162 270 324 | 35.2 32 27.8 | 1480 | 25.9 34.6 37.2 | 45 | Y225M-4 | 60 68 66 | 3.8 4.3 4.8 | 1280 |
250CCB550-25 | 330 550 630 | 27.1 25 22 | 1480 | 37.9 50.6 53.2 | 75 | Y280S-4 | 64 74 71 | 5.0 5.5 6.0 | 1860 |
250CCB500-32 | 300 500 570 | 37.3 32 28.5 | 1480 | 48.4 59.7 61.5 | 75 | Y280S-4 | 63 73 72 | 5.0 5.5 6.0 | 1950 |
300CCB650-22 | 390 650 750 | 25 22 20 | 980 | 42.2 53.4 56.8 | 75 | Y315S-6 | 63 73 72 | 4.0 4.5 5.0 | 2530 |
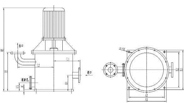
六、CCB型餐厨垃圾浆液处理泵安装尺寸表

型号 | L1 | L2 | H1 | H2 | H3 | H4 | H5 | A2 | A3 | B2 | B3 | n-φd |
50CCB8-20 | 335 | 460 | 20 | 490 | 1050 | 200 | 105 | 450 | 500 | 450 | 500 | 4-φ18 |
65CCB8-50 | 335 | 460 | 20 | 490 | 1050 | 200 | 105 | 450 | 500 | 450 | 500 | 4-φ18 |
65CCB10-20 | 335 | 460 | 20 | 490 | 1055 | 200 | 105 | 450 | 500 | 450 | 500 | 4-φ18 |
100CCB30-25 | 335 | 460 | 20 | 537 | 1140 | 200 | 105 | 450 | 500 | 450 | 500 | 4-φ18 |
125CCB150-25 | 335 | 460 | 20 | 550 | 1310 | 200 | 105 | 450 | 500 | 450 | 500 | 4-φ18 |
125CCB135-32 | 335 | 460 | 20 | 550 | 1420 | 200 | 105 | 450 | 500 | 450 | 500 | 4-φ18 |
150CCB180-25 | 430 | 530 | 25 | 630 | 1430 | 220 | 125 | 550 | 600 | 550 | 600 | 4-φ18 |
150CCB200-32 | 430 | 530 | 25 | 630 | 1530 | 220 | 125 | 550 | 600 | 550 | 600 | 4-φ18 |
200CCB300-25 | 430 | 570 | 25 | 780 | 1580 | 220 | 150 | 550 | 600 | 550 | 600 | 4-φ18 |
200CCB270-32 | 430 | 610 | 25 | 780 | 1650 | 220 | 150 | 550 | 600 | 550 | 600 | 4-φ18 |
250CCB550-25 | 450 | 680 | 25 | 970 | 1830 | 250 | 180 | 580 | 630 | 580 | 630 | 4-φ18 |
250CCB500-32 | 450 | 730 | 25 | 970 | 1830 | 250 | 180 | 580 | 630 | 580 | 630 | 4-φ18 |
300CCB650-22 | 450 | 840 | 25 | 1150 | 2360 | 250 | 180 | 580 | 630 | 580 | 630 | 4-φ18 |

进出口法兰 | 清淤口法兰 | ||||||||||||
DN | D1 | D2 | D3 | b | f | n-φd | DN | D1 | D2 | D3 | b | f | n-φd |
50 | φ99 | φ125 | φ165 | 20 | 3 | 4-φ18 | 100 | φ114 | φ136 | φ160 | 20 | 3 | 6-φ12 |
65 | φ118 | φ145 | φ185 | 20 | 3 | 4-φ18 | 100 | φ114 | φ136 | φ160 | 20 | 3 | 6-φ12 |
100 | φ156 | φ180 | φ220 | 22 | 3 | 8-φ18 | 100 | φ114 | φ136 | φ160 | 20 | 3 | 6-φ12 |
150 | φ211 | φ240 | φ285 | 24 | 3 | 8-φ22 | 150 | φ199 | φ225 | φ265 | 20 | 3 | 8-φ18 |
200 | φ266 | φ295 | φ340 | 24 | 3 | 8-φ22 | 200 | φ254 | φ280 | φ320 | 22 | 3 | 8-φ18 |
250 | φ319 | φ350 | φ395 | 26 | 3 | 12-φ22 | 250 | φ309 | φ335 | φ375 | 24 | 3 | 12-φ18 |
300 | φ370 | φ400 | φ445 | 26 | 4 | 12-φ22 | 300 | φ363 | φ395 | φ440 | 24 | 3 | 12-φ22 |




































